Оформление иллюстраций, графиков и таблиц

Рис. 22

Таблицы малого формата располагаются по тексту рукописи. Большие таблицы (формата А3) прикладываются в конец рукописи, а по тексту даются обязательно ссылки на них, например: "Данные расчета магнитной цепи генератора приведены в табл.3".

Пример оформления таблицы приведен в приложении 9 (таблица перехода к допускам Единой системы допусков и посадок СЭВ для размеров от 1 до 500 мм).

2.6. Угловые штампы. Спецификация. Основные надписи на конструкторских документах

Согласно ГОСТ 2.104–68 предусмотрены (формы угловых штампов для основных надписей:

 форма1 – для чертежей и схем (рис. 23, а);

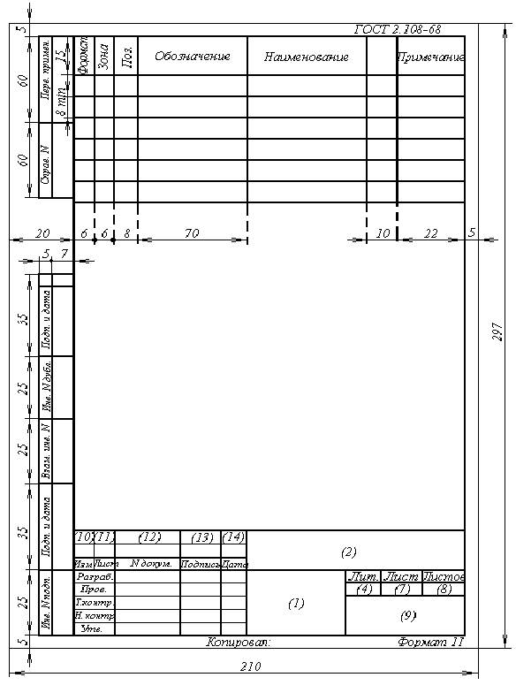
 -форма 2 – для текстовых конструкторских документов (первый или заглавный лист) (рис. 24);

 форма 2а – для последующих листов всех документов (рис.23, б).

Согласно ГОСТ 2.102–68 спецификация – документ, определяющий состав сборочной единицы, комплекса, комплекта.

Спецификация выполняется на отдельных листах формата А3 над основной надписью (формы 2 и 2а по ГОСТ 2.104–68) и заполняется сверху вниз в следующем порядке: документация, комплексы, сборочные единицы, детали, стандартные изделия, прочие изделия, материалы, комплекты (форма 1 по ГОСТ.2.108–68). Спецификация на чертежи, схемы и другие документы заполняется чертежным шрифтом и вкладывается в пояснительную записку КП или ДП.

Рис. 23

На рис. 24 представлены формы спецификации и углового штампа по форме 2 для основной надписи и размеры для вычерчивания спецификации. Размеры для вычерчивания штампа по форме 1 даны на рис. 23, а.

Каждый чертеж, схема, график должны иметь основную надпись по форме 1 или 2а (рис. 23). Основная надпись для спецификации выполняется по форме 2 или 2а (см. рис. 24).

Каждый лист проекта должен быть подписан студентом, руководителем и соответствующими консультантами.

В графах основной надписи указывают:

 в графе 1 – наименование изделия (в соответствии с требованиями ГОСТ 2.109–73), а также наименование документа, если ему присвоен шифр (по ГОСТ 2.102–68), или тему проекта, или наименование графика;

 в графе 2 – обозначение документа;

 в графе 3 – обозначение материала детали (графу заполняют только на чертежах детали);

 в графе 4 – для дипломного проекта – ДП;

– для курсового проекта – КП;

– для типового расчета – ТР;

 в графе 5 – массу изделия по ГОСТ 2.109–73;

 в графе 6 – масштаб (проставляется в соответствии о ГОСТ 2.302–68 и ГОСТ 2.109–73);

 в графе 7 – порядковый номер листа (на документах, состоящих из одного листа, графу не заполняют);

 в графе 8 – общее количество листов документации, (графу заполняют только на первом листе);

 в графе 9 – указывают "МЭИ ЭКАО" и номер группы;

 графы 10, 11 – не заполняются;

 в графе 12 – фамилия и инициалы должностных лиц, подписывающих лист;

 в графе 13 – подписи должностных лиц;

 в графе 14 – дата подписей.

Номера граф на формах показаны в скобках.

Рис. 24

Перейти на страницу: 1 2 

Дополнительно

Лазерная система для измерения статистических характеристик пространственных квазипериодических структур
В последние годы наблюдается интенсивное развитие аэрокосмической и ракетной техники, что в свою очередь ставит перед промышленностью задачу создания точных и надежных систем связи, ориентации и обнаружения подвижных объектов в пространстве. В большинстве случаев данные задачи решаются с прим ...

Распространение дифиллоботриоза в Костромской области и борьба с ним
Дифиллоботриоз плотоядных - антропозооноз, имеющий очаговое распространение, вызывается различными видами лентецов из рода Diphyllobothrium, среди которых наиболее распространен лентец широкий - Diphyllobothrium latum. Болеют собака, кошка, лисица, песец, куница, а также человек. Болезнь часто ...

Меню сайта